大相田ビル貸事務所(5F) 【貸事務所】

外観1 (外観)外観2 (外観)間取 (間取)
賃料
15万円
事務所
共益費・管理費
26,450円
敷金
30万円
所在地 大町1丁目4番50号  大相田ビル
交通 JR磐越西線 会津若松駅
築年月 新築/中古
面積 計測方式
バルコニー 向き
建物階数 部屋階数 5階
建物構造 鉄骨造
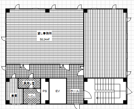
間取内容
間取図参照
住宅保険料 20,000円 
駐車場 11,000円 空有 駐車場は別契約となります(2台まで) 取引態様 仲介
引渡/入居時期 即時 現況
接道種別1 公道 接道幅員1 5.5m
周辺環境
設備・条件 冷房 暖房 エレベータ
物件番号 33-40

※別途仲介手数料

お気軽にお問い合わせ下さい。
お客様の立場にたってご相談にのらせていただきます。

Loading...
※物件掲載内容と現況に相違がある場合は現況を優先と致します。

問合せ先

(有)あゆみ産業
〒965-0025 福島県会津若松市扇町三丁目13番地の6
TEL:0242-25-4115  FAX:0242-25-4140
宅建免許番号: 福島県知事(7)第1933号

    お名前 (必須)

    メールアドレス (必須)

    電話番号

    題名

    メッセージ本文

    内容にお間違いは無いでしょうか。チェックを入れて「送信」ボタンを押して下さい。(確認画面は表示されません。)